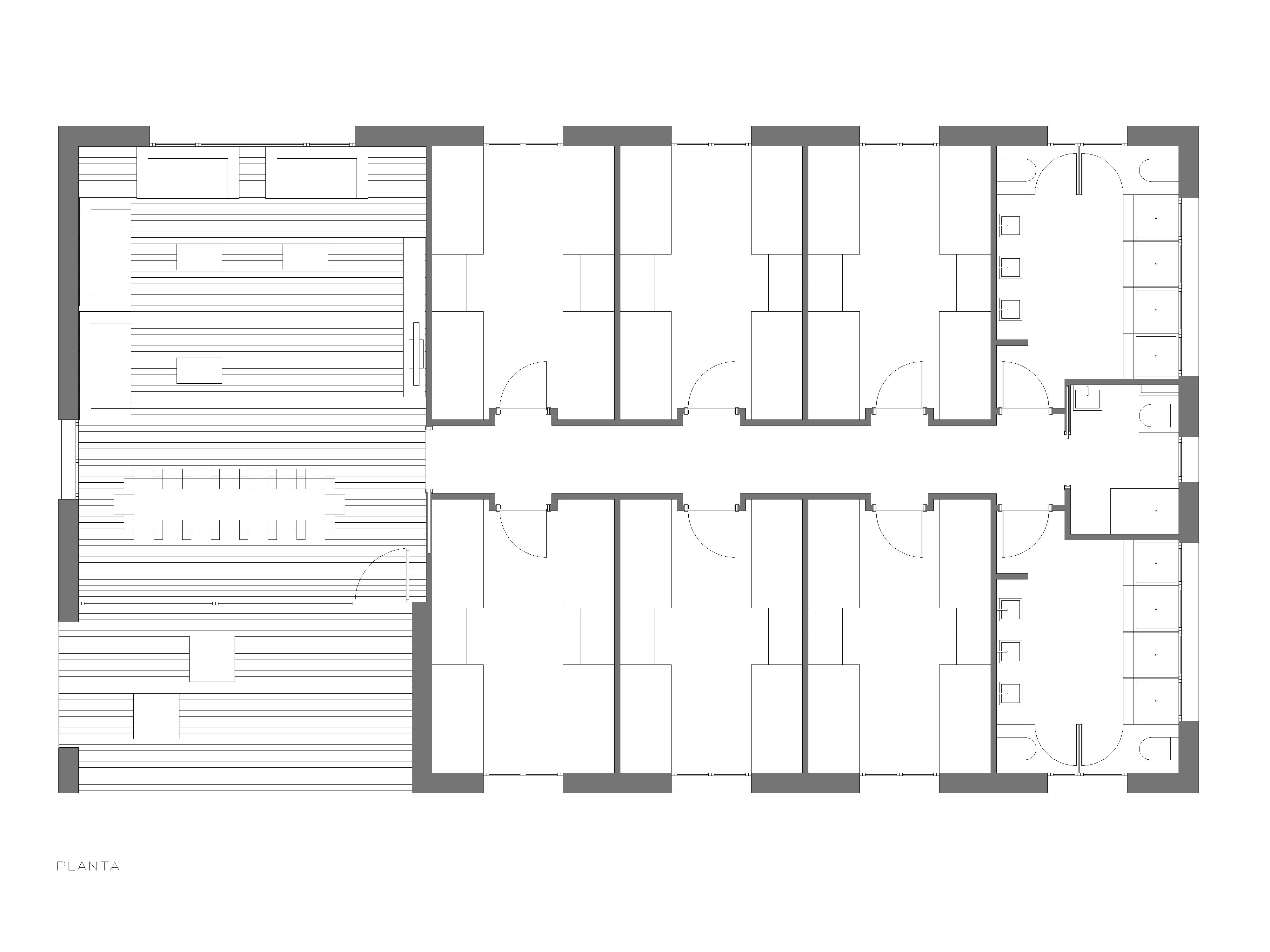
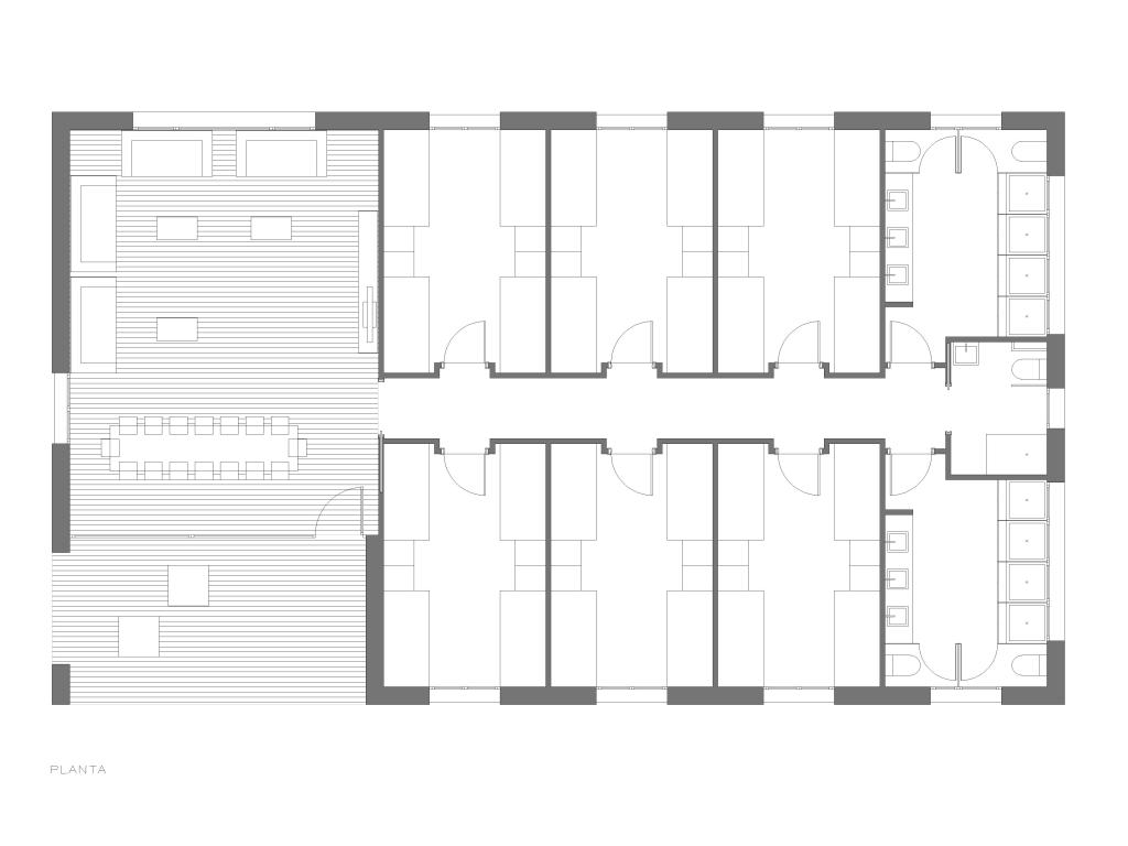
PLANTA-ALBERGUE BOÑAR-TAGARRO-DE MIGUEL ARQUITECTOS

Deja un comentario