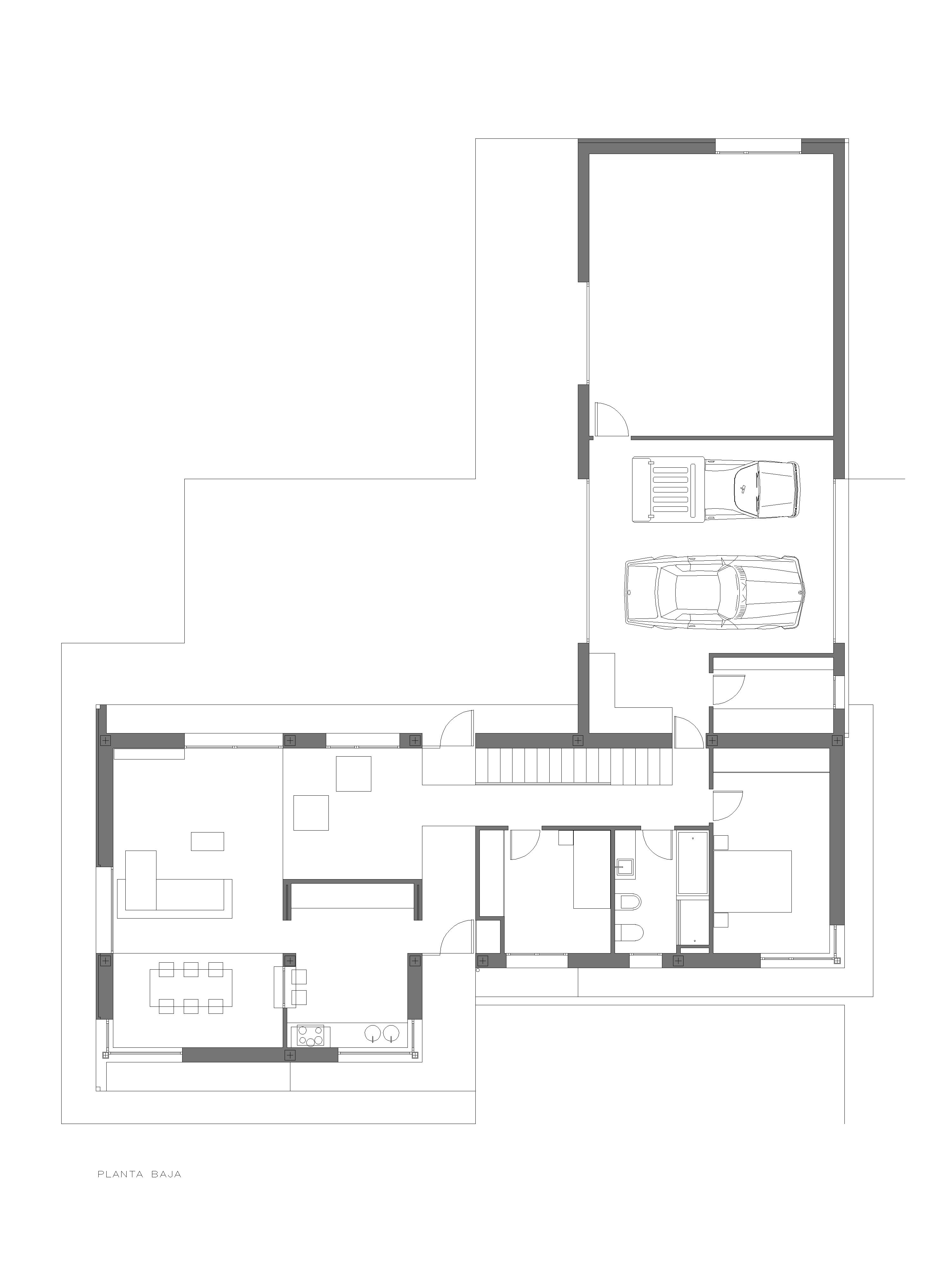
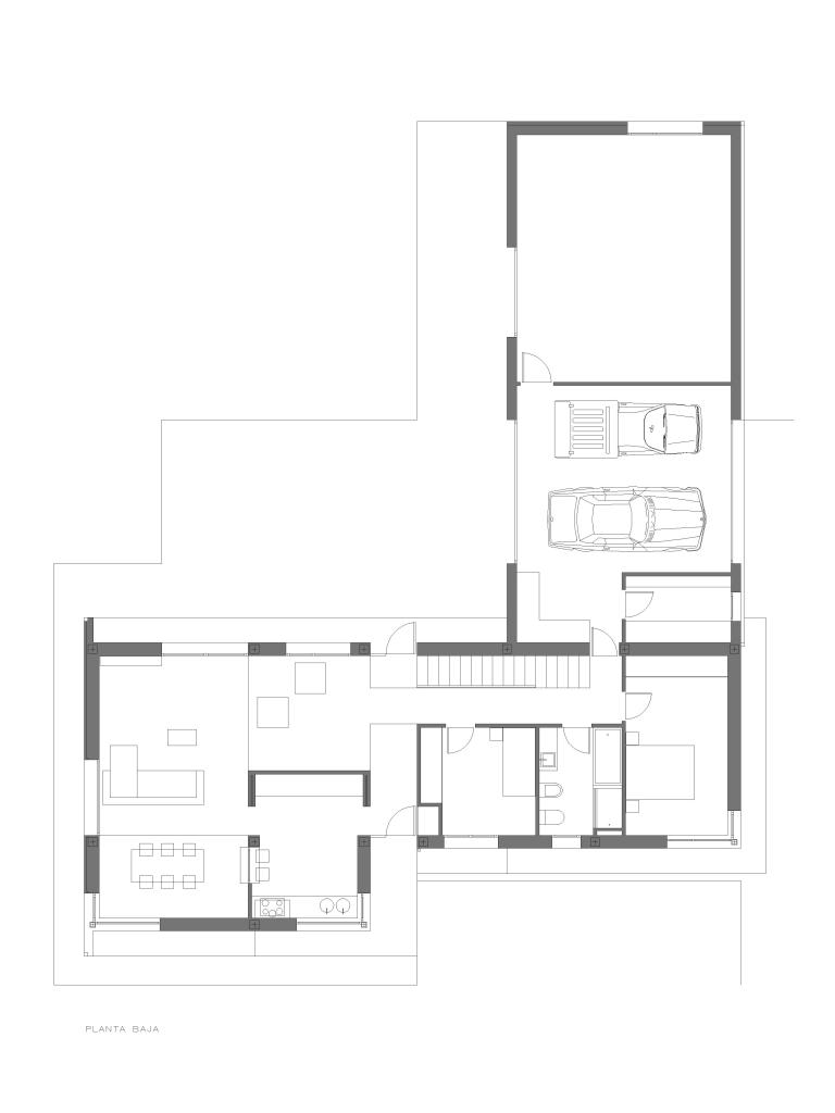
PLANTA BAJA-CASA BARCIA-TAGARRO-DE MIGUEL ARQUITECTOS

Deja un comentario