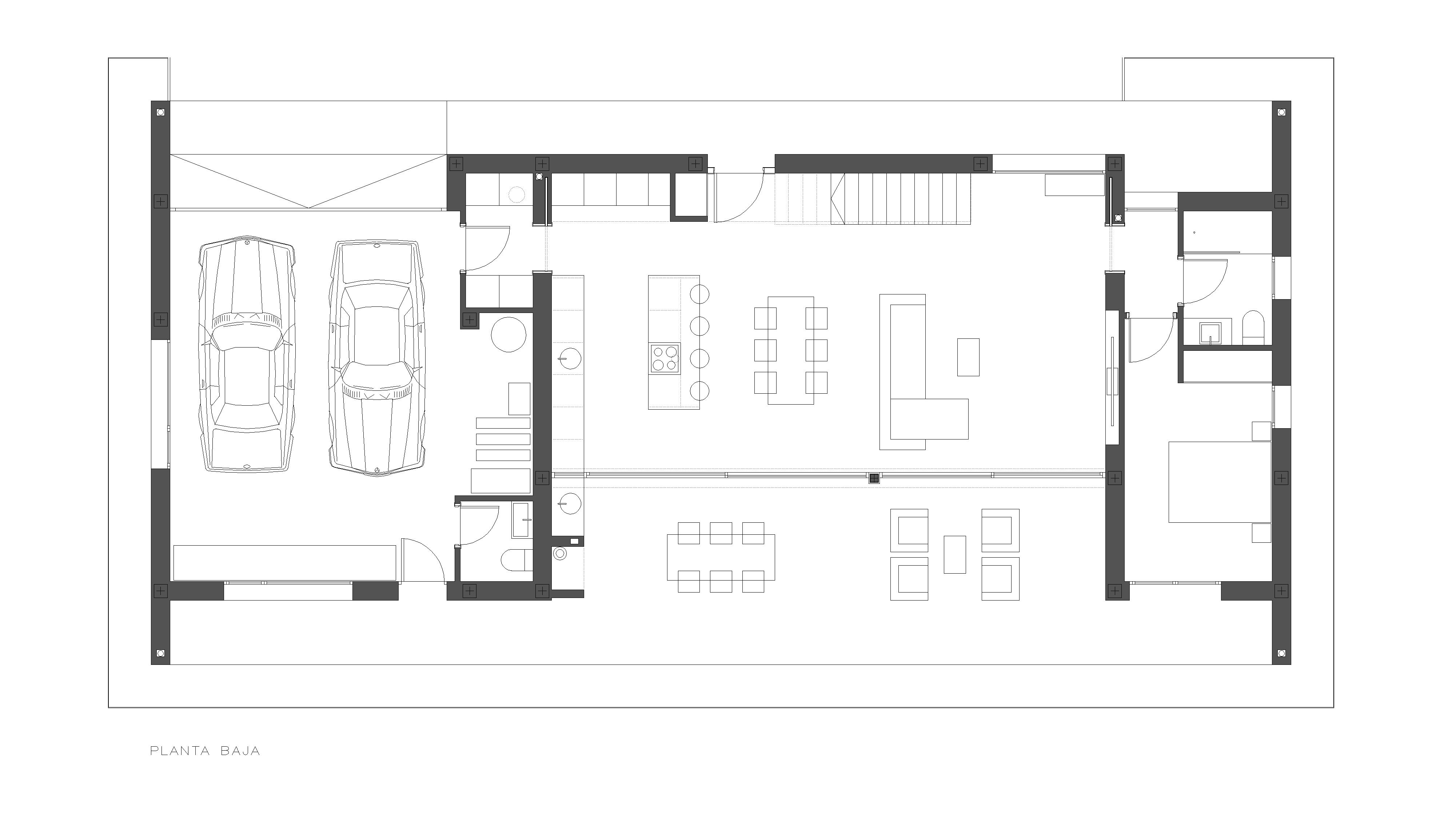
PLANTA BAJA-CASA BARREDA-TAGARRO-DE MIGUEL ARQUITECTOS

Deja un comentario