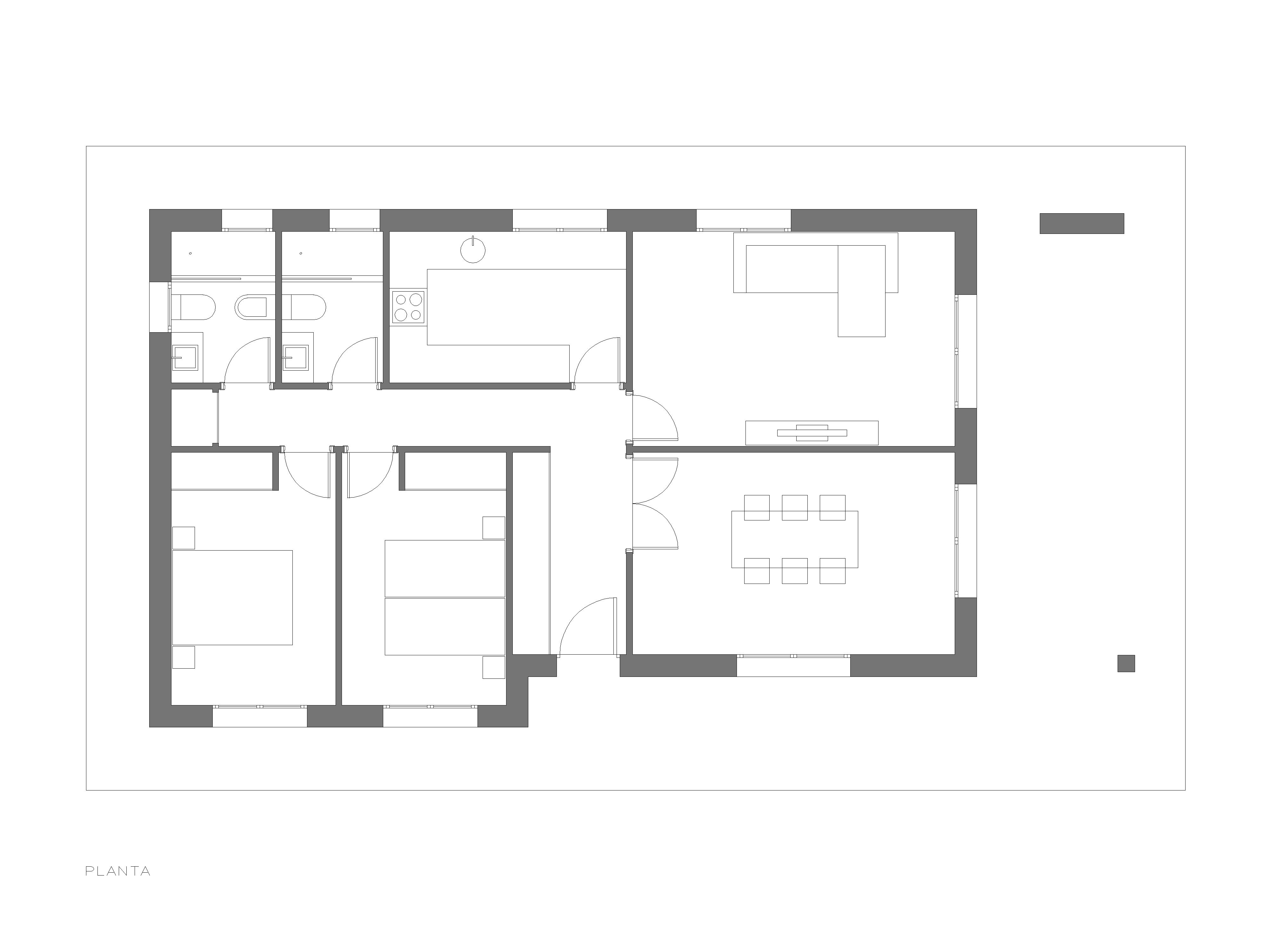
02-CASA BRAÑES-TAGARRO-DE MIGUEL ARQUITECTOS

Deja un comentario