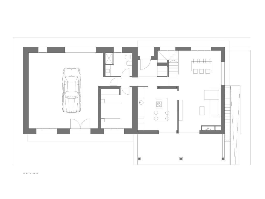
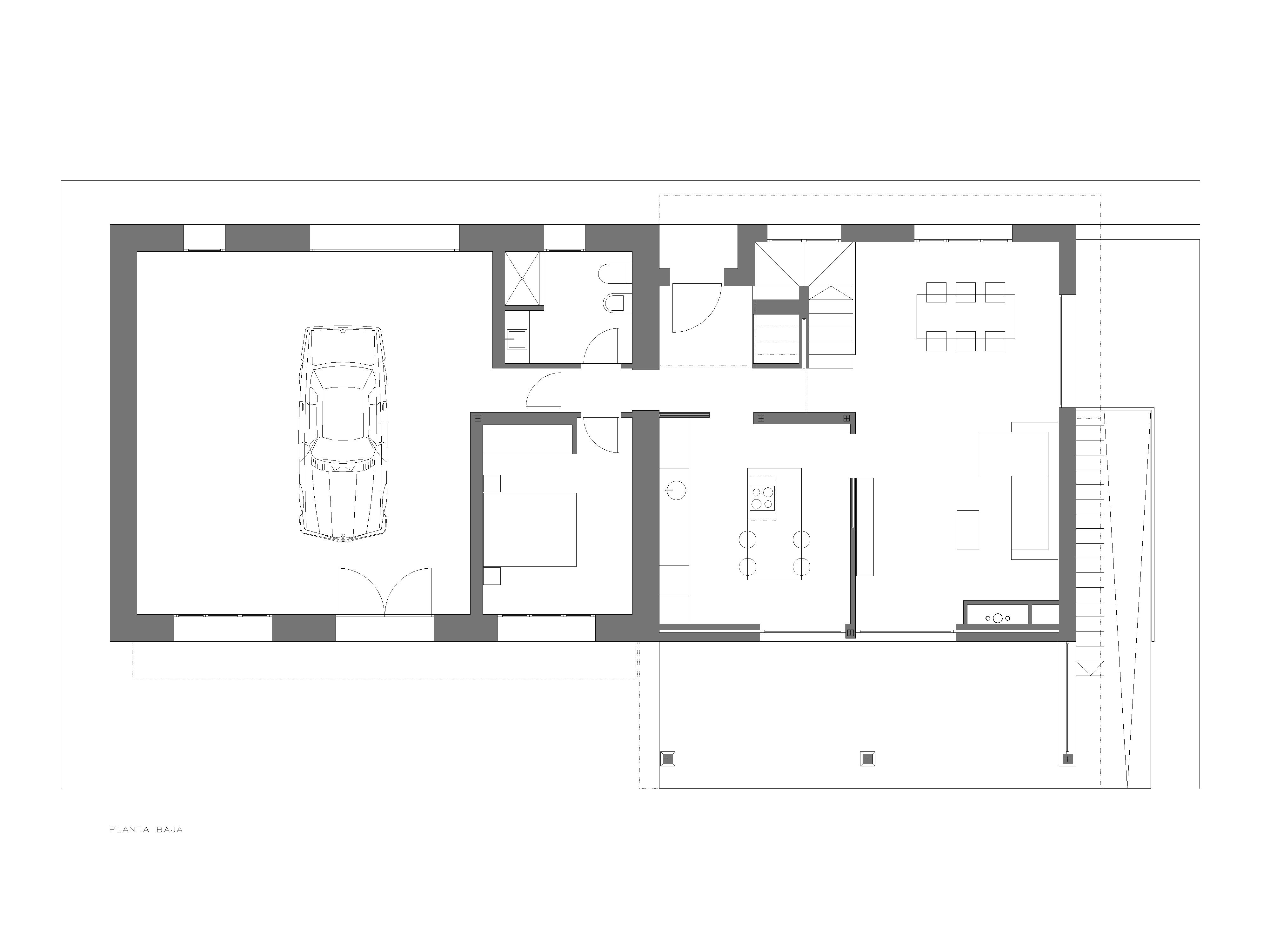
PLANTA BAJA-CASA CASARES -TAGARRO-DE MIGUEL ARQUITECTOS
- Publicado el 16/06/2014 en 4000 × 3000 en CASA CASARES
Estudio de Arquitectura de Asturias formado por los Arquitectos Álvaro Tagarro Díaz (Gijón) y Rodrigo de Miguel Martínez de Tejada (Oviedo)