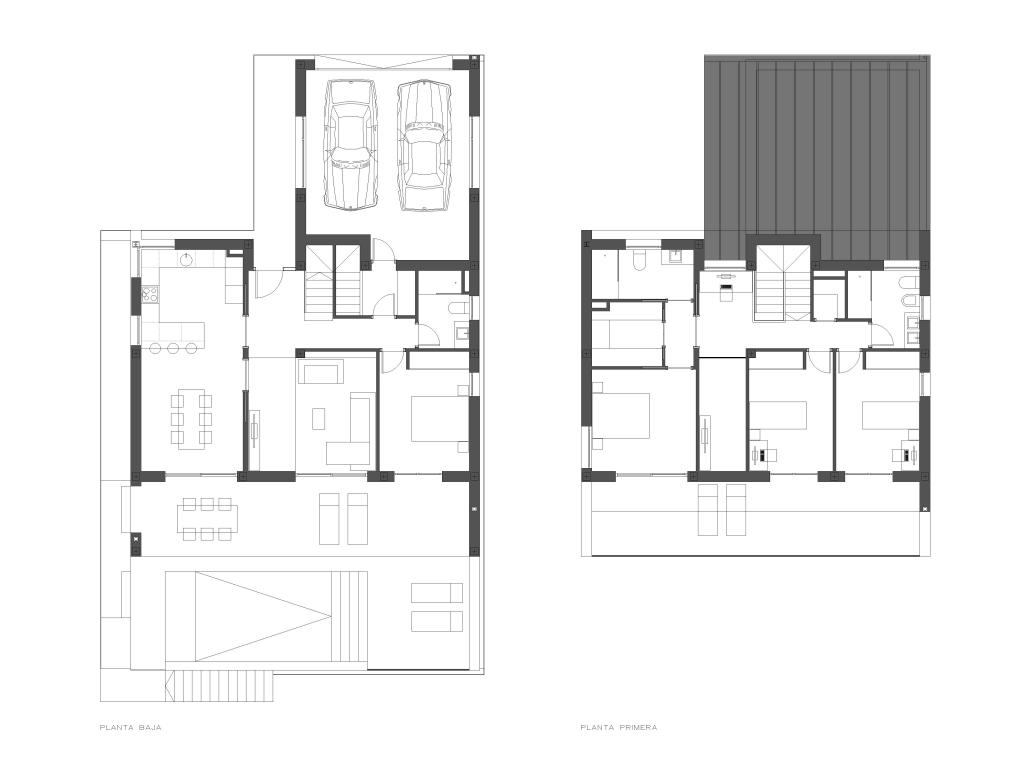
PLANTAS-CASA CUNIT-TAGARRO-DE MIGUEL ARQUITECTOS

Deja un comentario