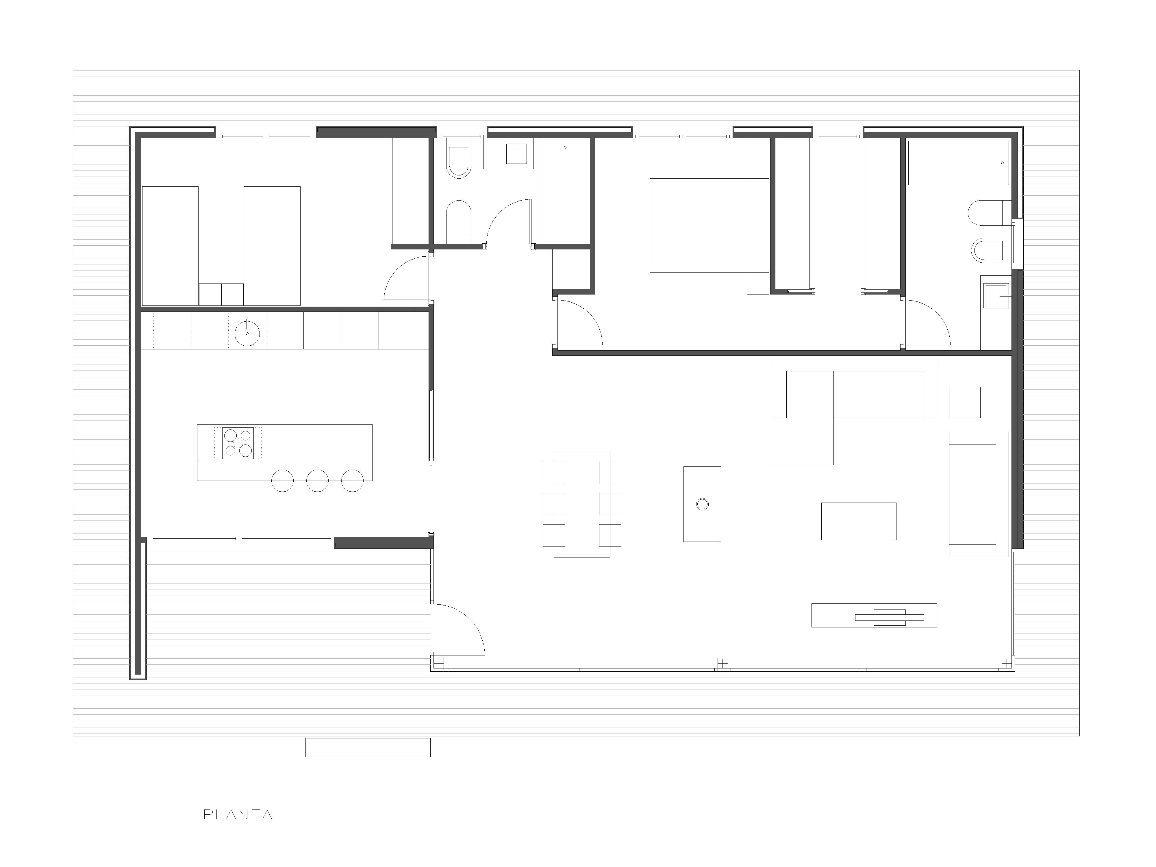
PLANTA-CASA K-TAGARRO-DE MIGUEL ARQUITECTOS

Deja un comentario