CASA LA VECILLA
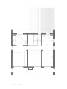
La parcela se libera al norte para crear el acceso y al sur para el disfrute más privado del porche y terraza posterior, para ello se ajustan los linderos laterales a los fijados por la normativa urbanística para aprovechar al máximo el ancho de la parcela y acortar la vivienda y los recorridos en sentido longitudinal.


















Hola Álvaro, me parece una pasada de casa. Creo que tendremos que hablar tu y yo sobre un futuro proyecto ji ji. Muy buen trabajo. Sensación de confortabilidad sin renunciar a una gran funcionalidad. Sólo cambiaría, y perdona por el atrevimiento, la entrada al garaje, siempre he querido poder pasar del garaje a la vivienda sin tener que salir al exterior, y por lo que veo en la casa esa opción no existe…pero como te digo es sólo una apreciación que seguro tenéis más que justificada. Enhorabuena.
Hola, Jacobo. Perdona por el retraso en contestar. Muchas gracias!! Me alegra que te guste la casa. Y puedes opinar lo que quieras, de atrevimiento nada, jeje, para eso estamos. El tema del paso del garaje a la casa es algo que si el cliente lo quiere, lo hacemos siempre. En este caso, quería simplemente un espacio cubierto y no muy grande, para el coche, sin cerrar, por lo que no precisaba esa comunicación.
Lo dicho, muchas gracias y cuando quieras hablamos sobre ese futuro proyecto, jejeje.
Un abrazo!