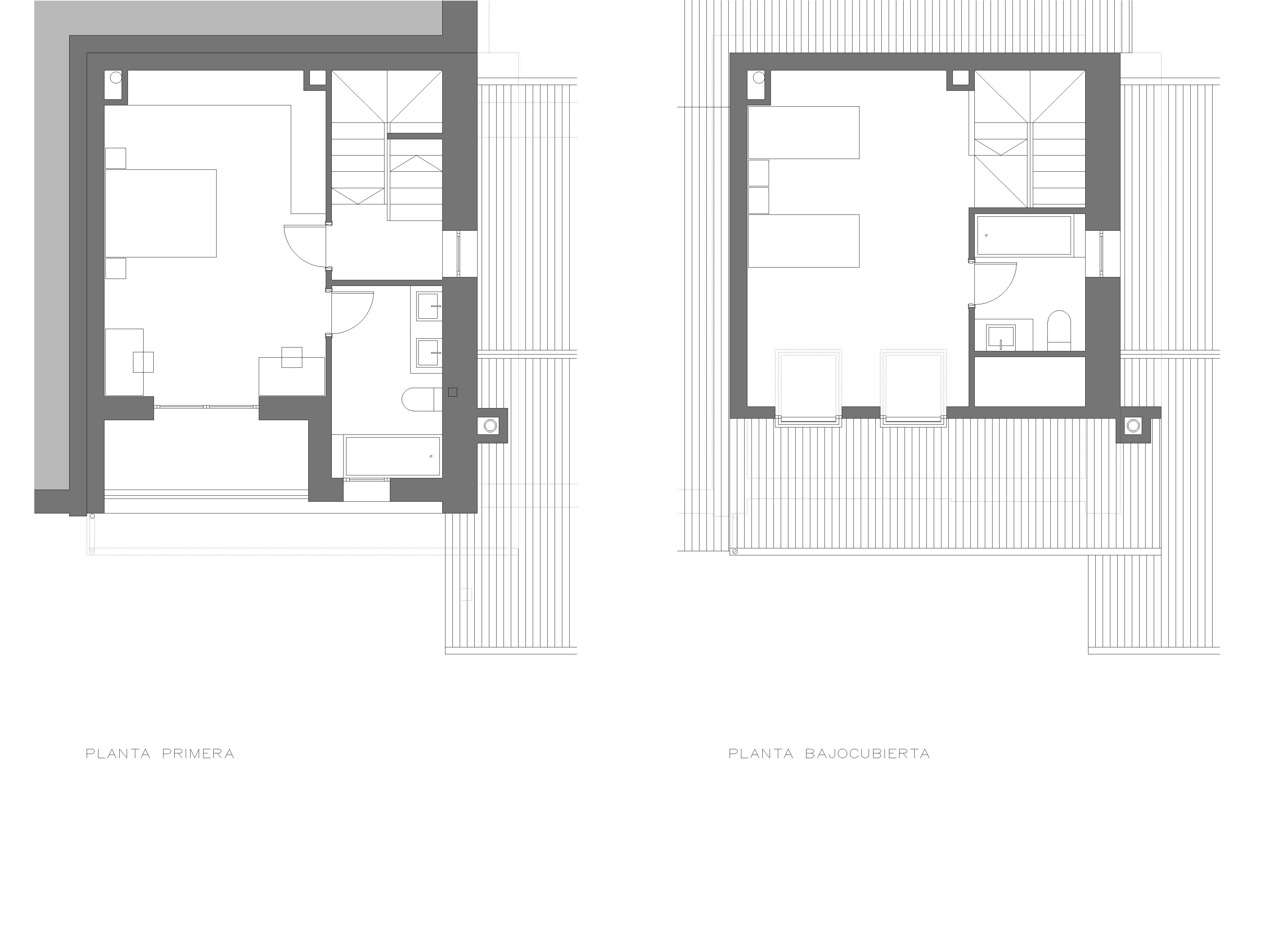
PLANTAS 1-2-CASA LECEÑES-TAGARRO-DE MIGUEL ARQUITECTOS

Deja un comentario