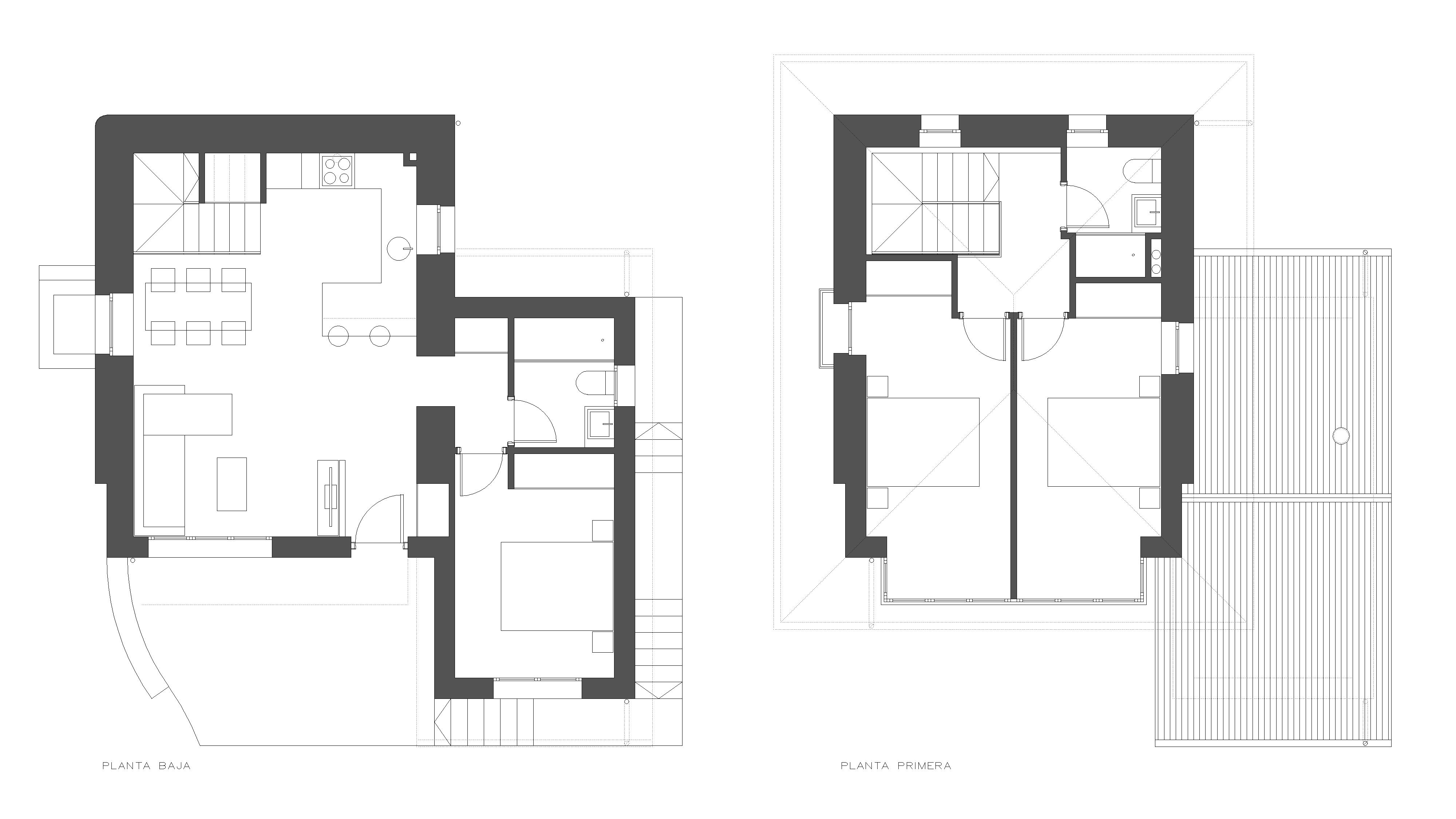
PLANTAS-CASA VIESCAS-TAGARRO-DE MIGUEL ARQUITECTOS

Deja un comentario