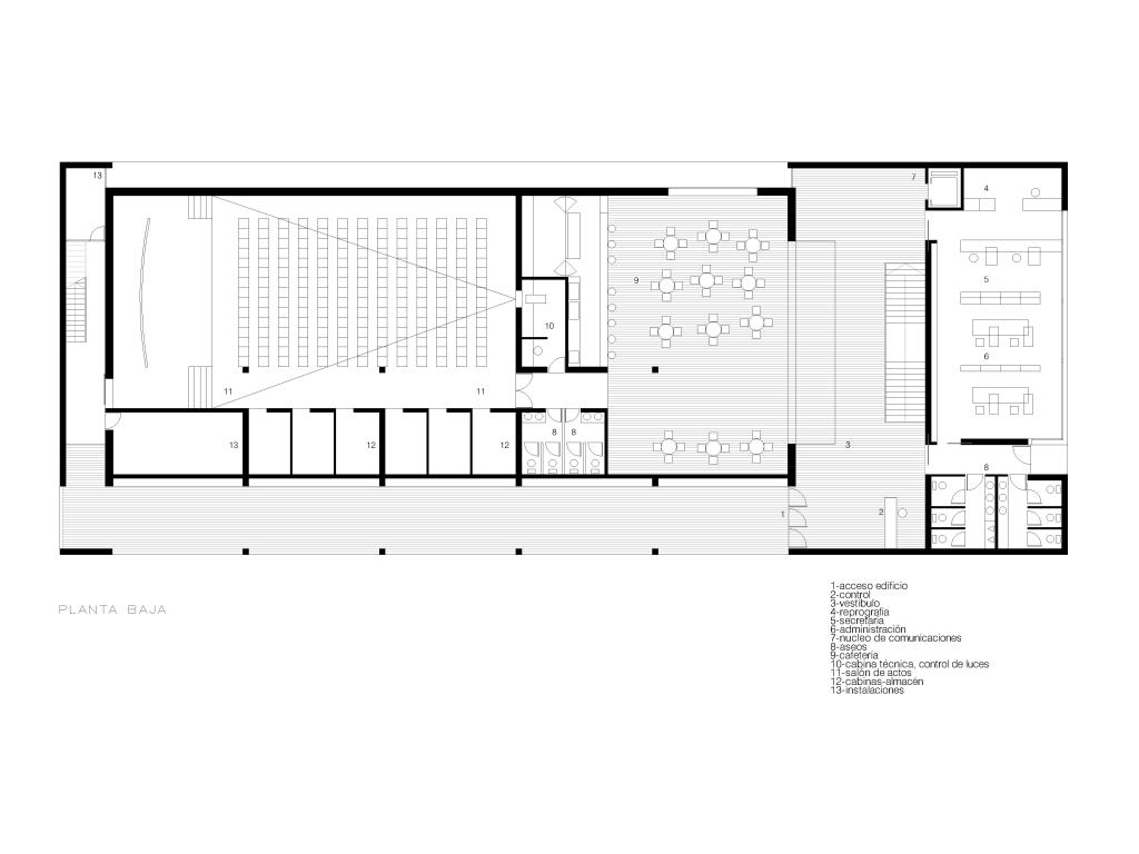
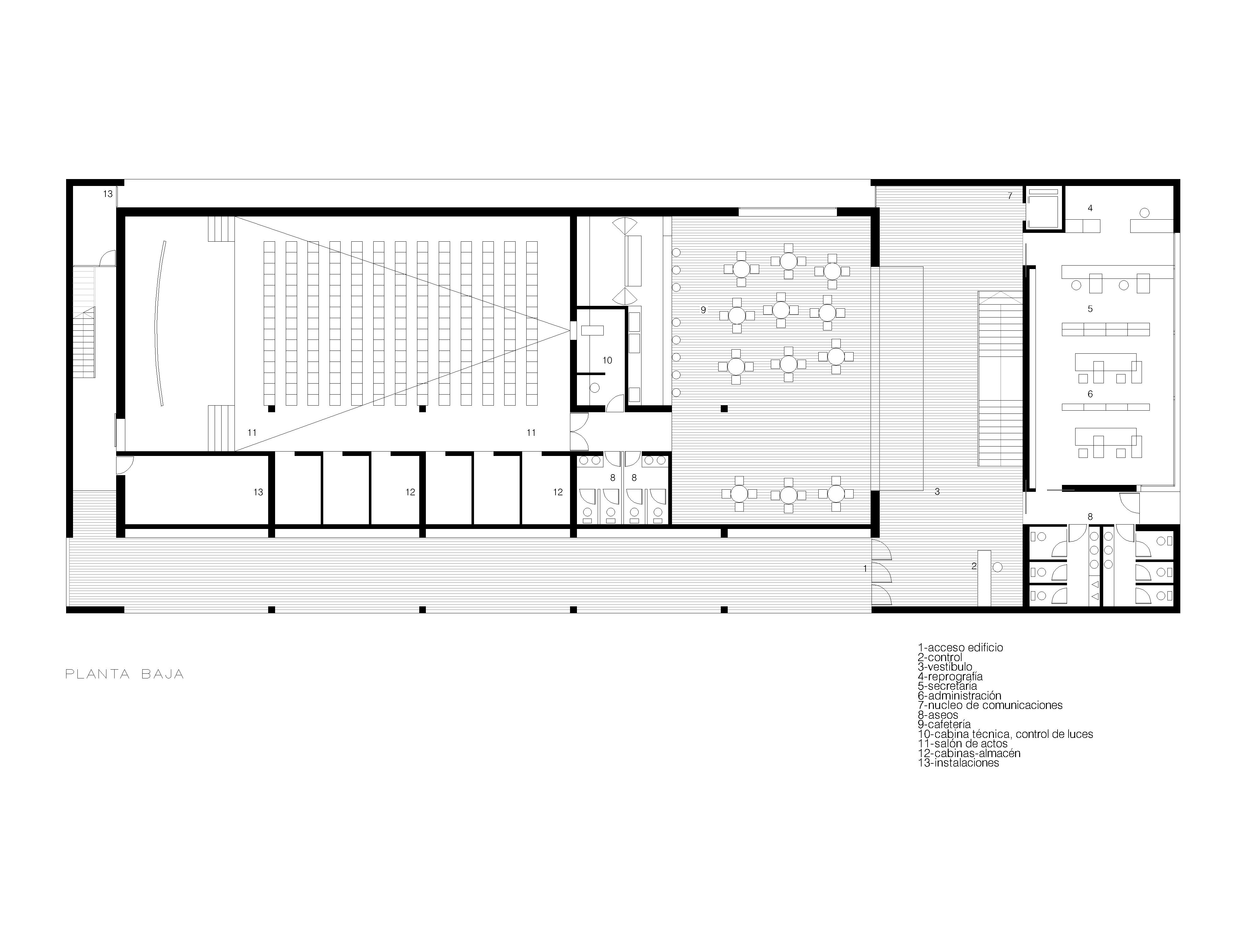
PLANTA BAJA-CENTRO FP -TAGARRO-DE MIGUEL ARQUITECTOS
- Publicado el 13/06/2014 en 4000 × 3000 en CONCURSO CENTRO F.P. IMAGEN Y SONIDO. LANGREO
Estudio de Arquitectura de Asturias formado por los Arquitectos Álvaro Tagarro Díaz (Gijón) y Rodrigo de Miguel Martínez de Tejada (Oviedo)