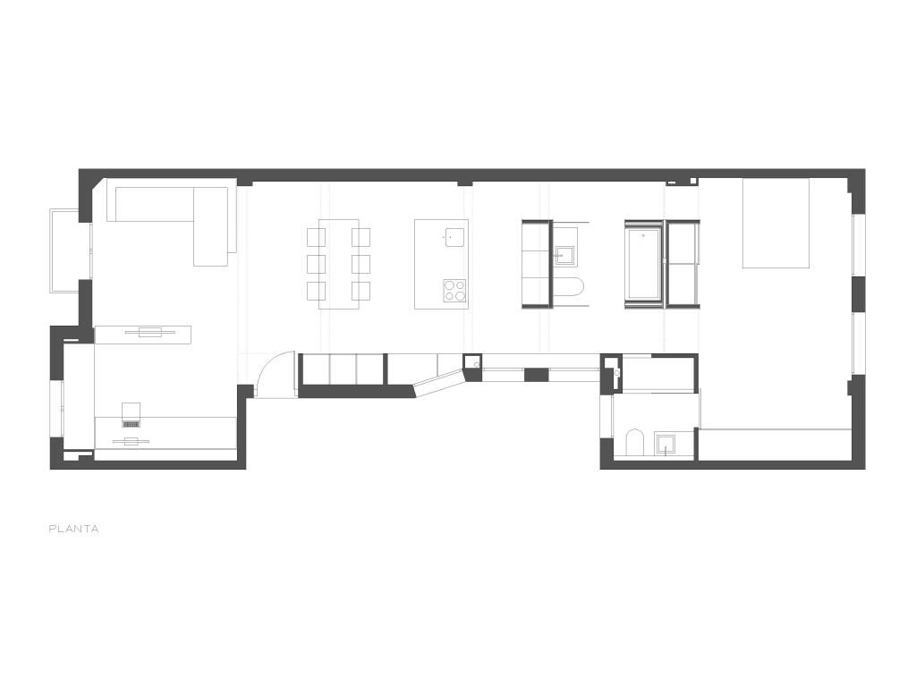
PLANTA-PISO BESADA-TAGARRO-DE MIGUEL ARQUITECTOS

Deja un comentario