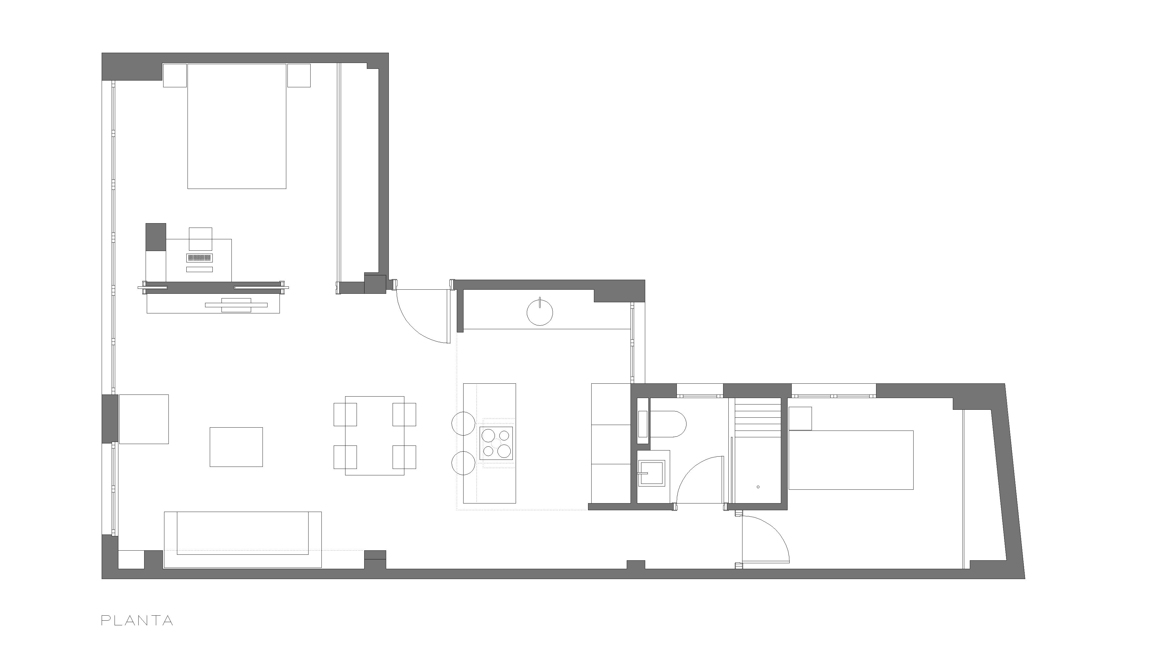
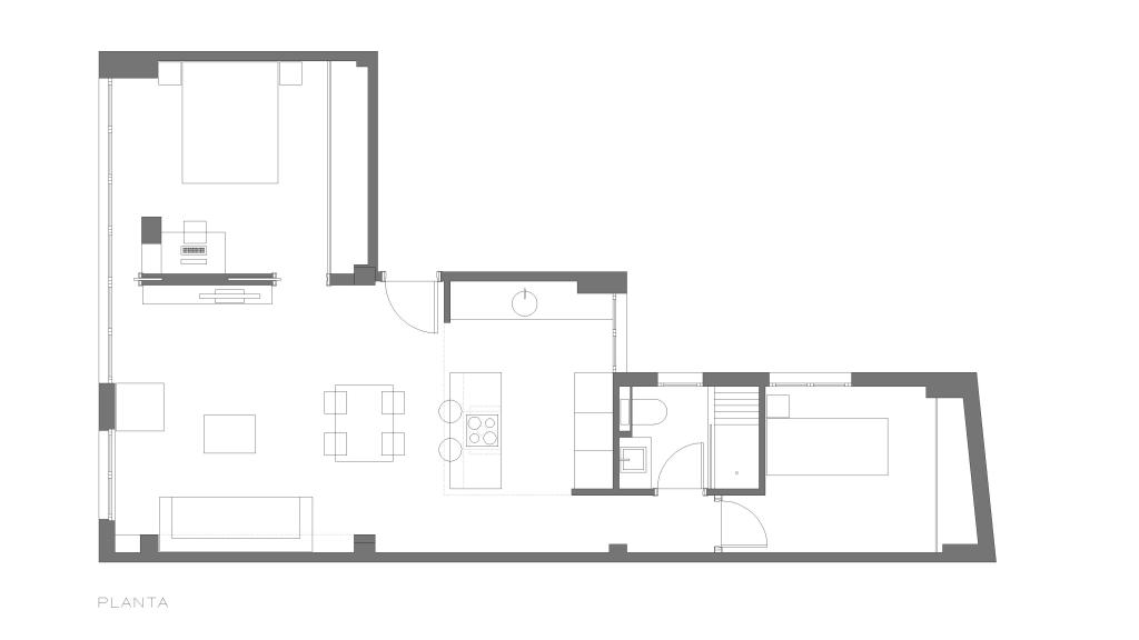
PLANTA-PISO CALLE ADARO-TAGARRO-DE MIGUEL ARQUITECTOS

Deja un comentario