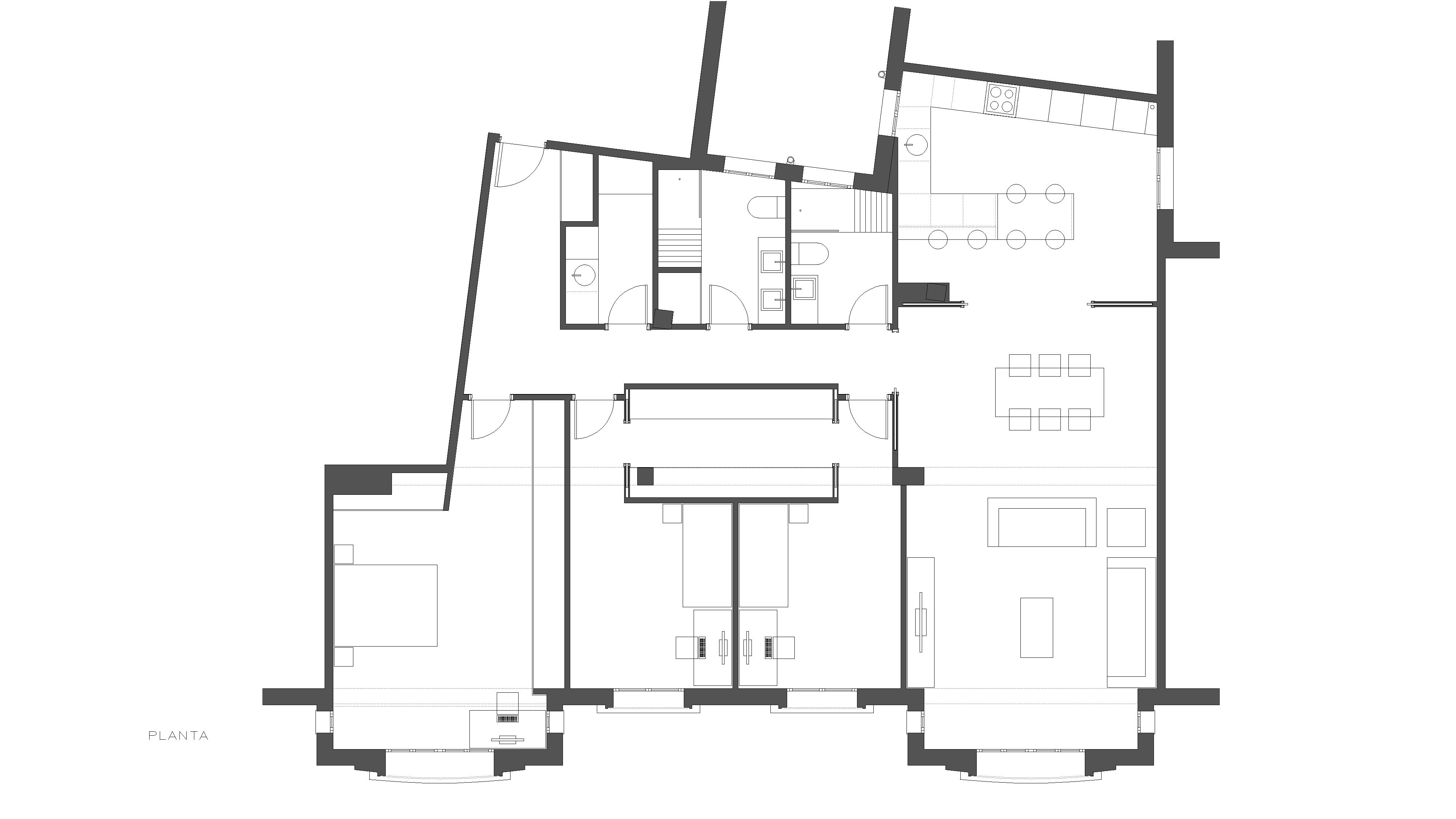
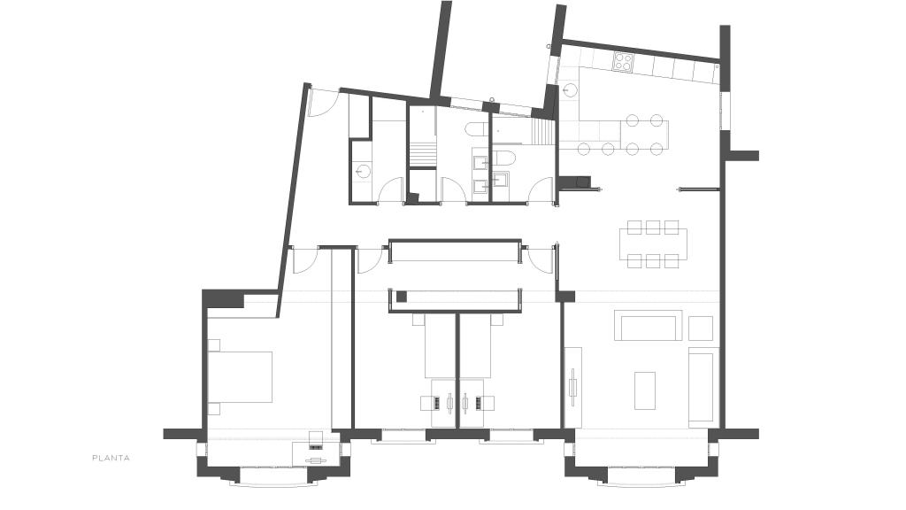
PLANTA-PISO CONCEPCION-TAGARRO-DE MIGUEL ARQUITECTOS
- Publicado el 23/08/2016 en 4001 × 2251 en PISO CONCEPCIÓN
Estudio de Arquitectura de Asturias formado por los Arquitectos Álvaro Tagarro Díaz (Gijón) y Rodrigo de Miguel Martínez de Tejada (Oviedo)