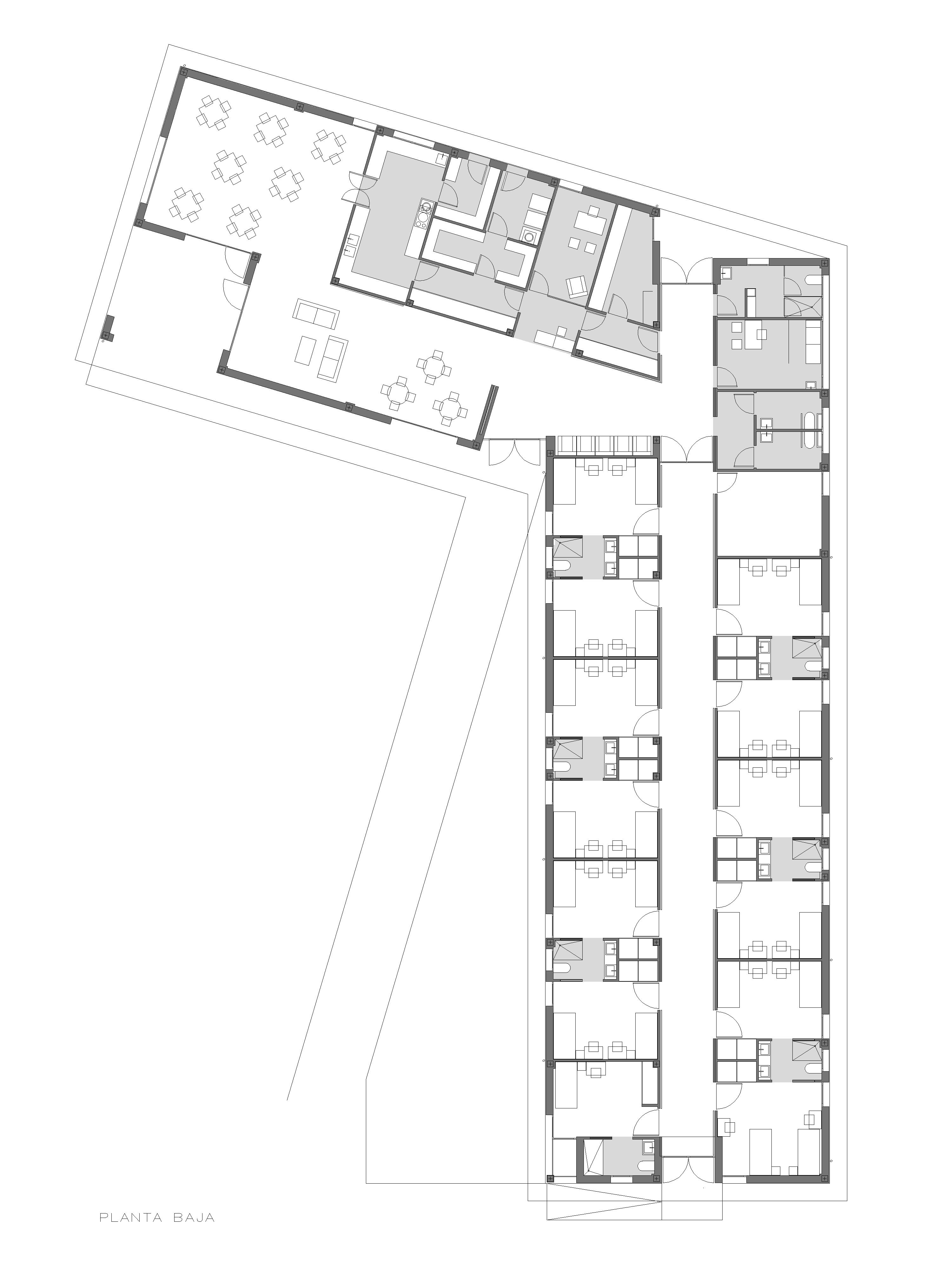
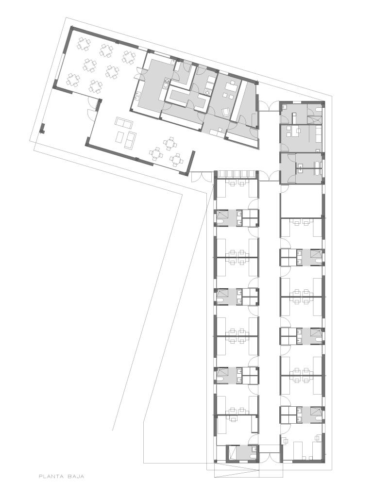
PLANTA-RESIDENCIA GERIÁTRICA LA MURILLA-TAGARRO-DE MIGUEL ARQUITECTOS
- Publicado el 16/06/2014 en 3000 × 4000 en RESIDENCIA GERIÁTRICA LA MURILLA
Estudio de Arquitectura de Asturias formado por los Arquitectos Álvaro Tagarro Díaz (Gijón) y Rodrigo de Miguel Martínez de Tejada (Oviedo)